
|
4 Bedrooms, 3 1/2 Baths Standard Features |
![]() |
|
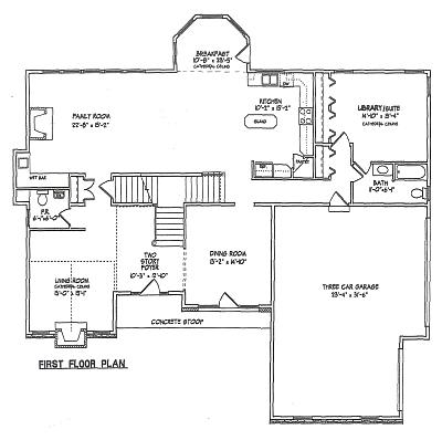
Family Room 22'8" x 15'2" Living Room 13'0" x 15'1" Dining Room 13'2" x 14'10" Kitchen 10'2" x 15'2" Breakfast Room 10'8" x 23'5" Library 14'10" x 13'4" 3 Car Garage 23'4" x 31'6" Additional Spaces Powder Room Bathroom |
|
Master Bedroom 19'8" x 13'8" Master Bathroom 10'10" x 16'0" Bedroom #2 13'9" x 11'8" Bedroom #3 13'2" x 15'0" Bedroom #4 11'10" x 13'0" Additional Spaces 4 Walk-In Closets 2 Bathrooms Laundry Attic Space Loft/Balcony |
If you would like more information on this community, please
click here.
All information is deemed reliable but is not
guaranteed.
Properties that are shown are subject to change, prior sale or withdrawal.
Neither listing brokers nor information providers shall be responsible for
any typographical errors, misinformation, or misprints, and shall be held
totally harmless.